Case Study Project: Waste Water Management System in a Smart House

by Mu Wen

  A brief introduction to the case study....

Introduction

The primary source of drinking water in Malaysia is from surface water. However, the source of the drinking water in certain areas such as Kelantan is from ground water. Indah Water Consortium is the main sewage operator in Malaysia. However, the high operation and maintenance costs of wastewater treatment lead to the lack of sustainability in the sewage industry Malaysia. The household consumption in Malaysia consumes 211 liters per capita per day according to the Malaysia’s per capita water consumption.

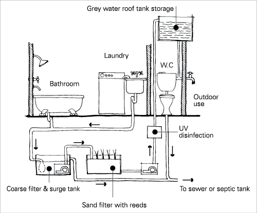
          Wastewater treatment is the procedure of eliminating the contaminants from the sewage water result in the minimum impact on the environment. Wastewater contains a lot of the biological pollutants (bacteria, viruses, and protozoa) and chemical or physical pollutants (heavy metals, organic particles, inorganic particles and toxic). There is various method that can be implemented at the household level to reuse and recycle the sewage water. The purpose of implement the waste water management in a house is to solve the short-term water scarcity issues consequently to save the cost and energy of the water resource. In an environmental perspective, the advantages of the wastewater management are supplied less water supplied and generated less polluted water. Wastewater can be categorized into either be reused, recycled or treated according to the quality, quantity and type of the water. The source of the waste water that produced from the households such as washing machine, showers, flush toilet, washing clothes and dishwashers. 93% of the water in the house that supplied from the water treatment plant utilizes in the indoors activities whereas 7% of them utilizes in the outdoor activities.

 

Objectives

  

  1. Provide a better living standard for future generation.
  2. To investigate waste water management process.
  3. To minimize the use of water source.

Indoor wastewater reuse system

Details